





Kilpailu, Syyskuu 2020
Yhteistyökumppani: Matias Kotilainen
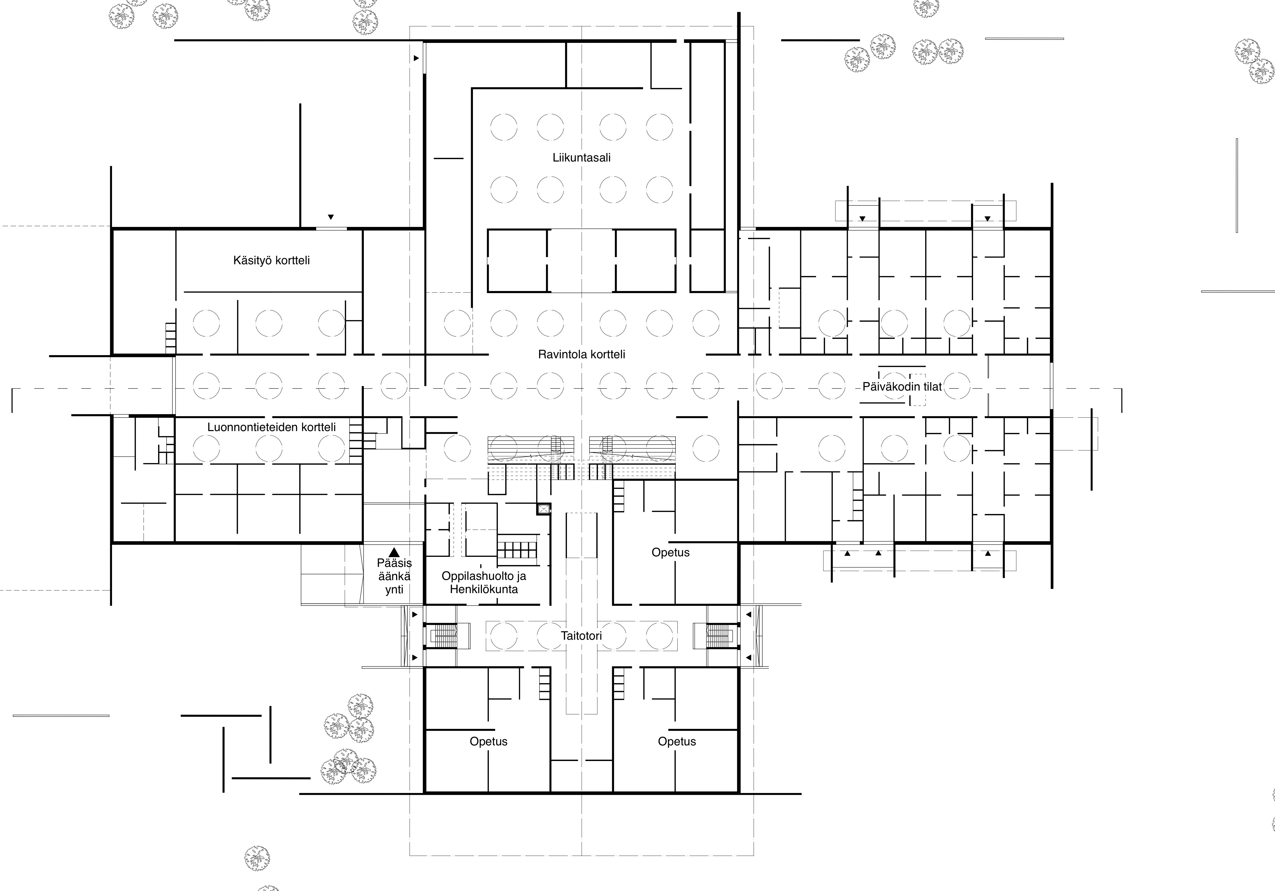
Rakennuksen ja maiseman suhde on symbioottinen. Rakennus ei ole hermeettinen, vaan pihan ja rakennuksen väliin muodostuu arkkityyppisten seinien avulla moninaisia ja luonteisia tiloja.
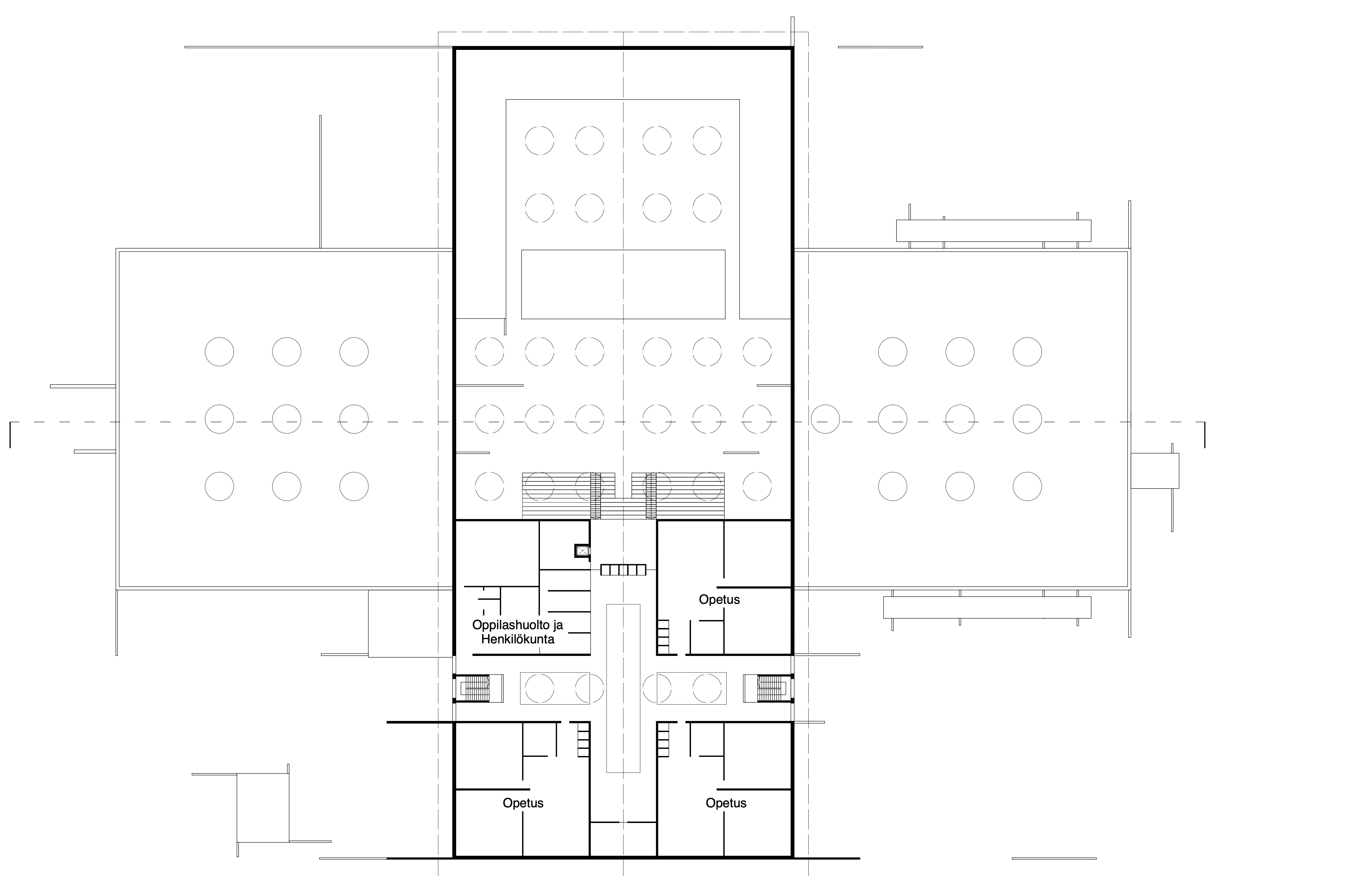
Koulun kaupunkikuvallisesti tunnistettavin rakenne on suuri katto joka leijuu vapaammin ja orgaanisesti sijoittuvien seinien yllä. Katto on vakaa ja rauhallinen. Sen alle kokoonnutaan. Rakennuksen muu arkkitehtuuri on joustavampaa ja liittyessään ympäristöönsä se kykenee taipumaan luonnon tahdon mukaisesti. Rakennuksen arkkitehtuuri on ennen kaikkea strategia jota kehittää ja jolla luoda holistinen ja paikkaan sidottu kokonaisuus, joka kykenee huomioimaan myös yksittäiset luontokappaleet.
Competition, Autumn 2020
Collaborator: Matias Kotilainen
The building has a symbiotic relationship with the surrounding landscape. Walls gradually open up to morph into the school yard creating a series of fluid and multifaceted spaces in the process.
The most recognizable feature of the school in the cityscape is the large roof that floats above the freely and organically placed walls. The horizontality of the roof has a calming effect and invites users to gather under it. The architecture of the school endeavours to create a holistic and site-specific whole that is also capable of taking individual naturally occuring features of the site into account.